Faszinierende 4-Familien-Villa auf ausgedehntem Parkgrundstück mit eigenem Wald in HD-Rohrbach
-
In einer ruhigen und malerischen Waldrandlage präsentiert sich dieses großzügige Grundstück mit einer Gesamtfläche von 2.961 m². Hier steht eine beeindruckende 4-Familien-Villa aus dem Jahr 1929, die mit ihrem charmanten Charakter und einer Wohnfläche von ca. 393 m² besticht.
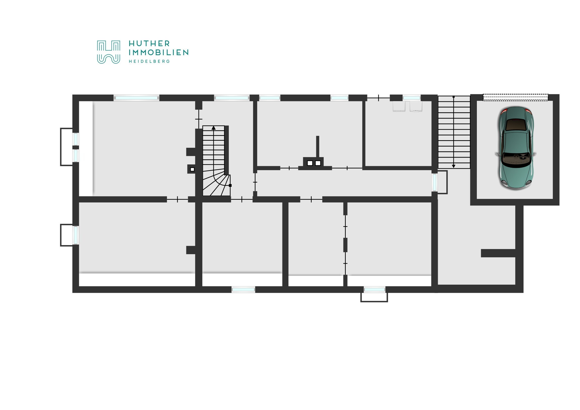
Die Wohnfläche der Bestandsimmobilie ist geschickt aufgeteilt und bietet folgende Raumgrößen:
– Zwischengeschoss rechts: 68,37 m²
– Zwischengeschoss links: 71,58 m²
– Erdgeschoss: 175,96 m²
– Dachgeschoss: 77,37 m²
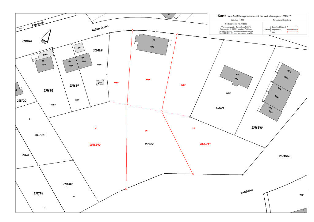
Das Bestandsgrundstück (Flurstück 25968/1) umfasst eine Wohnfläche von 398 m² auf einer Flurstücksgröße von 761 m². Hier entfallen 1.604 m² auf Laubholz-Wald und 1.357 m² auf Wohnbauflächen.
Bitte beachten Sie, dass laut Bauvorbescheid ein Abstand von 30 Metern zum Wald einzuhalten ist.
Dieses Grundstück bietet nicht nur eine hervorragende Möglichkeit zur Entwicklung, sondern auch einen Rückzugsort inmitten der Natur. Lassen Sie sich von der einzigartigen Lage und den vielfältigen Nutzungsmöglichkeiten begeistern! -
Flächen
- Wohnfläche: 393 m²
- Grundstücksfläche: 2.961 m²
- Gesamtfläche: 2.961 m²
- Zimmer insgesamt: 12
- Stellplätze: 1
- Stellplatzart: Garage
- Garagenstellplätze: 1
- Balkone: 1
Zustand & Erschließung
- Baujahr: 1929
- Zustand: gepflegt
Sonstiges
– Ruhige, grüne Wohngegend
– Gute Anbindung an öffentliche Verkehrsmittel
– Nahegelegene Einkaufsmöglichkeiten, Schulen und Freizeitangebote
– Attraktive Umgebung mit hohem Freizeitwert- Immobilie ist verfügbar ab: nach Absprache
-
- Energieausweis-Gebäudeart: Wohngebäude
-
Heidelberg ist eine Großstadt in Baden-Württemberg im Südwesten Deutschlands, am Neckar gelegen, wo dieser den Odenwald verlässt und in die Oberrheinebene eintritt. Die ehemalige kurpfälzische Residenzstadt ist bekannt für ihre malerische Altstadt mit der Schlossruine sowie für ihre renommierte Universität, die älteste Hochschule auf dem Gebiet des heutigen Deutschlands. Sie zieht Wissenschaftler und Besucher aus aller Welt an.
Mit über 162.000 Einwohnern ist Heidelberg die fünftgrößte Stadt Baden-Württembergs. Sie ist Stadtkreis und zugleich Sitz des umliegenden Rhein-Neckar-Kreises. Das dicht besiedelte Rhein-Neckar-Gebiet, in dem Heidelberg gemeinsam mit den Großstädten Mannheim und Ludwigshafen liegt, wird als Metropolregion Rhein-Neckar bezeichnet.
Rohrbach befindet sich ungefähr drei Kilometer südlich vom Stadtzentrum Heidelbergs entfernt auf etwa halbem Wege nach Leimen.
Neben Alt-Rohrbach mit der Melanchthonkirche und dem Rathaus setzt sich Rohrbach aus den Ortsteilen Kühler Grund, Gewann See, Hasenleiser und Rohrbach-Süd (Gewerbegebiet) zusammen. Ebenfalls zu Rohrbach gehört das etwas abgelegene, bewaldete und landwirtschaftlich genutzte Gebiet um den Bierhelder Hof. Früher gehörten auch noch die nunmehr selbständigen Heidelberger Stadtteile Boxberg und Emmertsgrund zur Gemarkung Rohrbach.
Mit allen Ortsteilen kommt Rohrbach insgesamt auf über 15.000 Einwohner.
Rohrbach verfügt über zwei Grundschulen, eine Hauptschule und eine Gesamtschule.
-
- Kaufpreis: 1.850.000 €
- Käuferprovision: 4,5% zzgl. 19% MwSt.
Grundrisse
Dein Kontakt bei uns
- Mobil: +49 160 979 122 10
- Weitere Informationen: www.huther-heidelberg.de
Uferstraße 10, 69120 Heidelberg
- E-Mail (Zentrale): dr.sabine.welters@huther-immobilien.de
- Telefon (Zentrale): +49 6221 4399 33










